近日,希腊智库IOBE公布的月度调查显示,希腊经济信心指数和消费者信心指数在6月下滑后,上月均出现复苏。
希腊经济景气指数创4年来新高
7月,希腊经济景气指数(ESI)攀升至105.3点,创下4年来新高。IOBE认为,希腊经济景气指数的整体发展势头与宏观经济的发展和各行业的短期指数是一致的,而这些行业的趋势一直是正面的。
希腊民众对于国家的经济、就业和储蓄前景也开始普遍持乐观态度。可见希腊经济危机解除,大萧条的阴霾正逐渐消散。另一方面,希腊经济复苏也让有移民投资希腊意向的人士吃了一颗定心丸。
经济复苏,希腊投资集结号已吹响
曾经陷入危机的希腊,在经过多年的努力后早已在我们的不知不觉中走出了困境,并在前不久正式宣布债务危机解除。目前经济正在强势回暖,而作为经济的晴雨表的希腊房地产业表现也非常喜人。
2017年第四季度,希腊的房地产业热度开始走高,需求量骤增。10月份,希腊政府颁发的建筑许可证数量同比增加16.4%,建筑面积同比增加67.2%;如影随形的是,希腊各个地区的房价,均出现了不同程度的涨幅,首都雅典更是一马当先。
相较希腊经济危机发生前,目前的希腊房价仍处于低位,200万人民币就能在雅典很好的地段买到优质房产,获得世代传承的永久产权。据统计,在经济最萧条的时候,希腊房价跌幅达45%之巨,在雅典部分地区,这一数字更是达到了60%。基于此,专家保守预测,希腊房价还将有20%的上升潜力,现在投资希腊房产正当时!
希腊买房移民项目作为投资希腊房产的重要途径之一,仅需25万欧元,即可参与希腊房产投资,分得经济复苏带来的房产升值红利,同时又可全家三代速获希腊永久居留签证,自由通行欧洲,还可享受希腊的医疗、教育和生活气候环境等方面的福利,因而备受投资者追捧。
希腊买房移民开拓者与引领者世贸通集团,携手希腊实力开发商限量推出雅典滨海CBD优质公寓正火爆销售中。
雅典滨海CBD优质公寓
国内优先选房购房,永久产权,升值可期
购房可获希腊永居签证,更可享受惊喜优惠!
限量好房源供不应求,部分好房源已售罄,早到早得!
雅典滨海CBD优质公寓项目简介
该项目区域是雅典市中心外的新发展黄金地段,为雅典南部新兴富人区,同时也是雅典沿海铸造的“新城”,整体规划整齐、布局高端,房子设计前卫,均为精品。
项目优势
项目地处雅典南部核心地段,CBD商务中心区,毗邻雅典新地标文化中心,滨海公园及雅典船王航运集团总部。临近雅典南部海滨长廊区域,步行可到海边。
开车15分钟到达雅典市中心;步行8分钟抵达著名的21世纪雅典文化建设项目——斯塔夫罗斯·尼亚尔霍斯文化中心;开车仅9分钟即可到达迷人的菲利斯莫斯码头,13分钟即可到达欧洲大的市区发展项目——海利尼肯旧机场改造项目。
完善的配套管理服务,专业的物业管家,24小时安保监控,住户可享安心优质生活;完善的生活配套设施,包含学校,医院,超市,餐厅,文化中心等。
项目所在地周边实景图
项目效果图
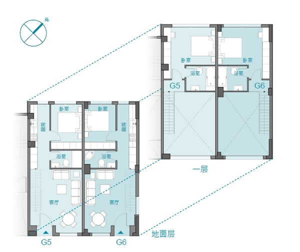
项目户型平面图
G层平面图(地面及1层)
A层平面图(2层)
B层平面图(3层)
C层平面图(4层)
更多房产详情,请咨询:400-138-2929。





